Mehrgenerationenhaus mit traumhaftem Alpenblick – Nähe Salzburg

€ 1.300.000

6

Schlafzimmer

3

Badezimmer

310 m2

Wohnfläche

Beschreibung

In sonniger und ruhiger Lage im Berchtesgadener Land befindet sich dieses großzügige Mehrfamilienhaus mit beeindruckendem Panoramablick auf die umliegende Alpenkulisse. Die Immobilie eignet sich ideal als Mehrgenerationenhaus, für Wohnen und Arbeiten unter einem Dach oder auch als attraktive Kapitalanlage.

Das Haus wurde 1971 in solider Bauweise errichtet und steht auf einem weitläufigen Grundstück von rund 1.610 m². Insgesamt stehen ca. 310 m² Wohnfläche zur Verfügung, verteilt auf drei separate Wohneinheiten über drei Etagen.

Aufteilung:

  • Erdgeschoss: ca. 115 m², 4 Zimmer, Küche, Bad, Terrasse mit Alpenblick

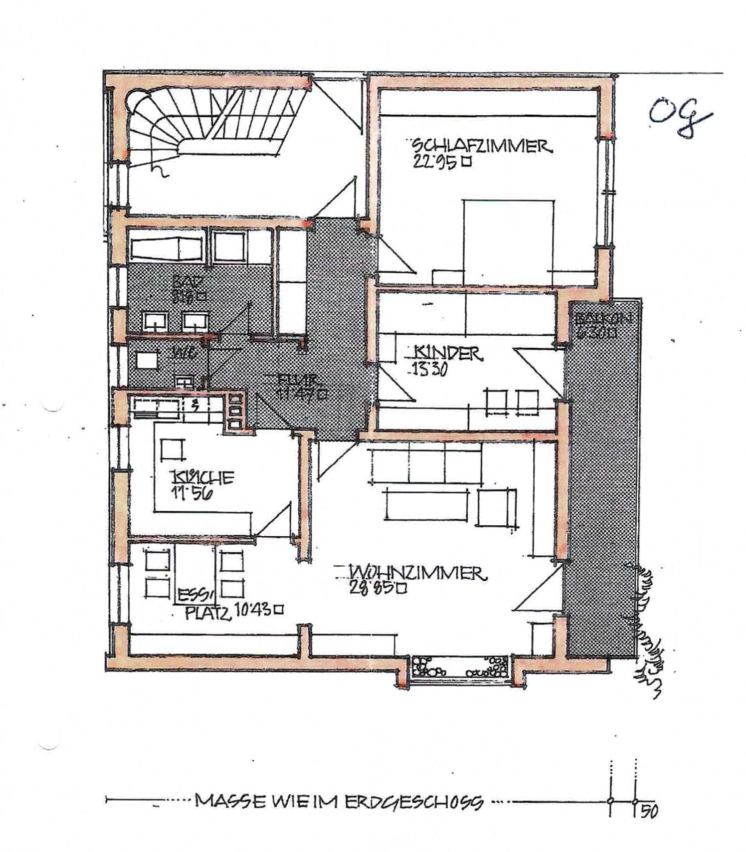
  • Obergeschoss: ca. 115 m², 4 Zimmer, sonniger Balkon

  • Dachgeschoss: ca. 80 m², 3 Zimmer, Badezimmer mit Tageslicht

Das Gebäude ist voll unterkellert und bietet zusätzliche Nutzflächen, Abstellräume sowie eine Garage und weitere Stellplätze vor dem Haus.

Besonders hervorzuheben ist das große Grundstück mit Garten, das viel Privatsphäre und Erholungsqualität bietet. Von Terrasse und Balkon genießen Sie einen unverbaubaren Blick auf Untersberg, Lattengebirge und Watzmann.

Ausstattung & Zustand:

  • Gepflegter Gesamtzustand

  • Öl-Zentralheizung

  • Normale Ausstattungsqualität

  • Drei abgeschlossene Wohneinheiten

Lage:
Die Immobilie befindet sich in attraktiver Wohnlage in Anger. Salzburg ist in etwa 15 Minuten erreichbar, Bad Reichenhall in ca. 10 Minuten. Kindergarten und Grundschule befinden sich in unmittelbarer Nähe, ebenso Einkaufsmöglichkeiten und eine gute Verkehrsanbindung.

Ein vielseitiges Haus mit großem Potenzial – ideal für Familien, mehrere Generationen oder Investoren, die Wohnen und Vermieten kombinieren möchten. Die besondere Lage mit Alpenpanorama macht diese Immobilie zu etwas ganz Besonderem.

Provisionshinweis: Die Käuferprovision beträgt € 10.000,- (MwSt. inkl.)

Haftung:
Alle Angaben stammen vom Verkäufer. Immobilien Jordan, Inhaber Michael Jordan übernimmt daher keine Haftung für die Richtigkeit der Angaben. Insbesondere die Angaben zur Wohnfläche, zur Nutzfläche und zur Aufteilung der Wohn-/Nutzfläche sind von uns nicht durch ein eigenes Aufmaß oder eine Wohnflächenberechnung kontrolliert worden. Die Angaben zum Baujahr sind nicht durch eine Einsicht in die Bauakte kontrolliert worden.

Energy Index in kWh/m2a: 140,5
Energy Class: E
A+
A
B
C
D
140,5 kWh/m²a Energy class E
E
F
G
H

Details des Angebotes

Property Id: 35433
Preis: € 1.300.000
Wohnfläche: 310 m2
Grundstück: 1.610 m2
Zimmer: 11
Schlafzimmer: 6
Bäder: 3
Etagen: 2

Grundrisspläne

Anger Grundriss EG
Plan Anger OG
Plan Anger DG
Plan Anger Keller

Fotogalerie

Ähnliche Angebote

Haftungsausschluss

Property ID - 198 | 35433

Alle Angaben stammen vom Verkäufer. Michael Jordan übernimmt daher keine Haftung für die Richtigkeit der Angaben. Insbesondere die Angaben zur Wohnfläche, zur Nutzfläche und zur Aufteilung der Wohn-/Nutzfläche sind von uns nicht durch ein eigenes Aufmaß oder eine Wohnflächenberechnung kontrolliert worden. Die Angaben zum Baujahr sind nicht durch eine Einsicht in die Bauakten kontrolliert worden.

Immobilien vergleichen

Michael Jordan